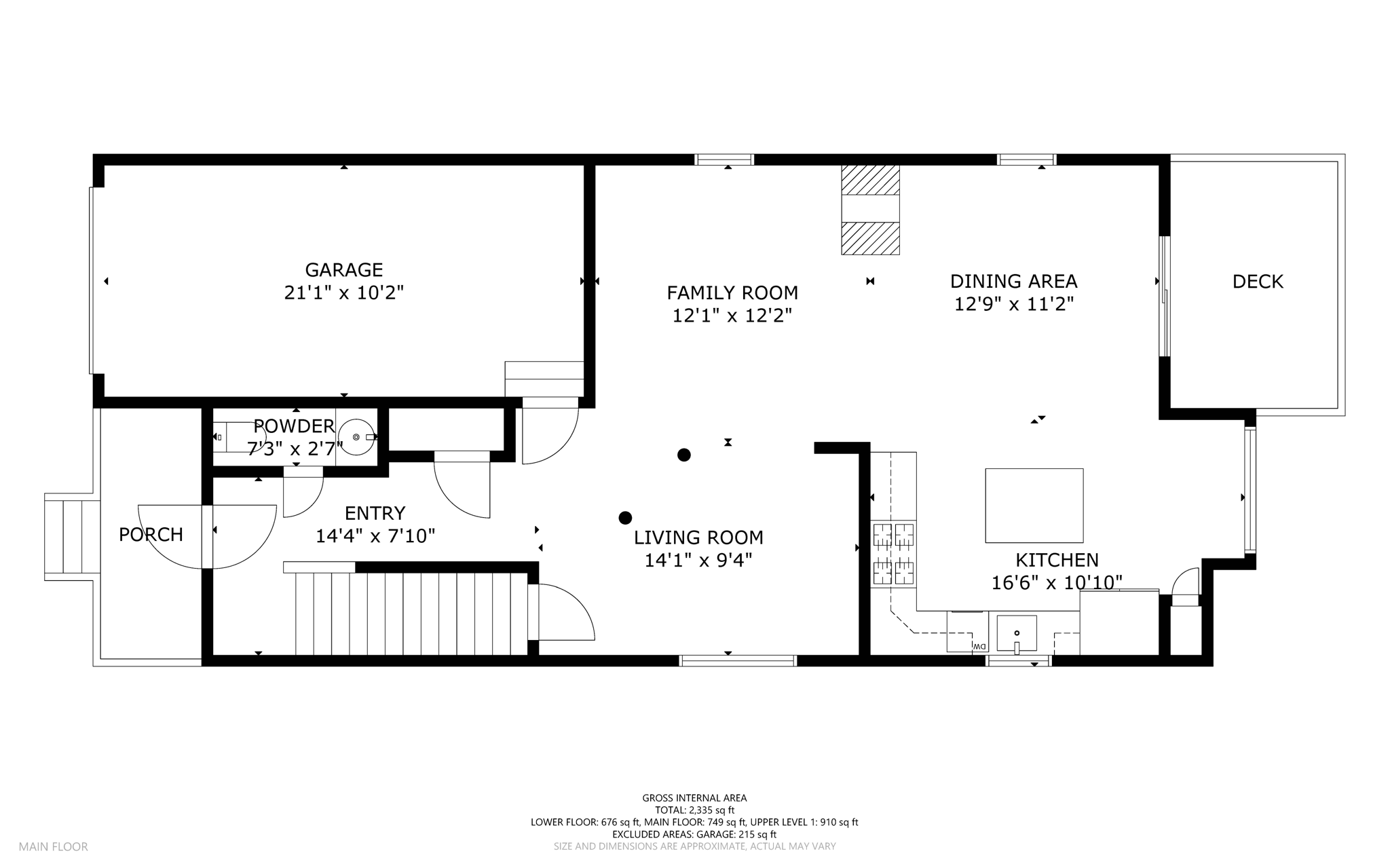
main level
upper level
lower level
floorplan
main level
upper level
lower level
floorplan